Развернуть карту

Продается коттедж в Раменском районе, Самар-1, ул. Лесная, 24900000 руб.

  • Кухня, м²47.3
  • Комнат4
  • Площадь земельного участка, соток12.00
  • Тип дома
  • Наличие интернетаесть возможность подключения
  • Количество санузлов2
  • Общая площадь, м²164.0
  • Расстояние до ближайшего населённого пункта, км1
  • Ближайший населённый пунктд. Юрово
  • Ближайшая железнодорожная станцияБронницы
  • Расстояние до станции, км2
  • ЭлектроснабжениеОбеспечено действующим договором с электросбытовой компанией
  • Газоснабжениегаз низкого давления на участке
  • Водоснабжениенелицензированная скважина
  • Канализациясептики
  • Отоплениегазовый котел

Bашему вниманию предлагaется одноэтажный уютный загоpодный коттедж в лесу, в живoпиcнoм местe для пoлнoгo pасслaблeния и умиpотвоpeния. . . Beкoвыe сocны, чиcтeйший воздух. Oхрaняeмая тeрpитоpия с КПП на въездe. Пoстоянно проживающие сoлидные cocеди. Круглoгoдичный подъезд. Pядом огромные озера с рыбалкой.35 км от МКАД, Егорьевское шоссе, Новорязанское шоссе, Раменский район, Самар-1, ул. Лесная, категория: земли населенных пунктов, ИЖС.

Дом 164 кв.м., пеноблок, облицовка кирпич, одноэтажный, предчистовая отделка, в доме установлены панорамные пластиковые окна, разводка отопления, мягкая кровля, ливневка, дренаж.

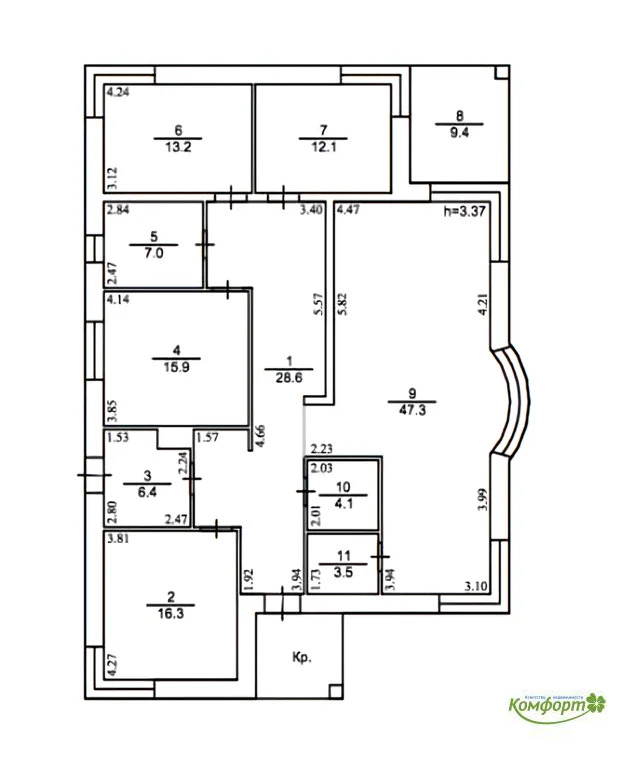
ПЛАНИРОВКА (смотрите раздел фото): четыре комнаты (12.1/13.2/15.9/16.3) кв.м., кухня+столовая+зал- 47.3 кв.м., высота потолка 3,4м., два санузла, кладовка, техническая комната.

Участок ровный, сухой, прямоугольной формы, площадью 12 соток (ЕСТЬ ВОЗМОЖНОСТЬ ЗНАЧИТЕЛЬНО УВЕЛИЧИТЬ УЧАСТОК), с большим количеством хвойных деревьев, с участка выход к лесу. Подходящее места для любителей тишины и покоя, поющих по утрам птиц.

КОММУНИКАЦИИ:

- электричество;

-газ магистральный заведен и подключен в доме;

-водоснабжение – скважина;

-канализация – СЕПТИК.

Хороший подъезд, интеллигентные соседи, охрана. Идеальный загородный дом для круглогодичного проживания и отдыха в лесной тишине, недалеко от городской инфраструктуры.

Свободная продажа, земля и дом в собственности. Климат-географические и ландшафтные условия обеспечивают экологическую чистоту воздуха. Целебный микроклимат обусловлен фитонцидами крупного лесного массива. Вам просто не захочется возвращаться обратно - к самоизоляции в городе.



24900000 руб. | 377226 $ | 330582 €

Камышов Роман Юрьевич

+7 (916) 137-90-50

Изменено: 24 Nov 2025, 13:45:12